Bâtisse Rose

Les coulisses du projet

Rénovation complète et Décoration intérieures

Le moodboard

De la couleur et de l’authenticité. Voici les maitres mots qui ont guidé l’élaboration du moodboard du projet.

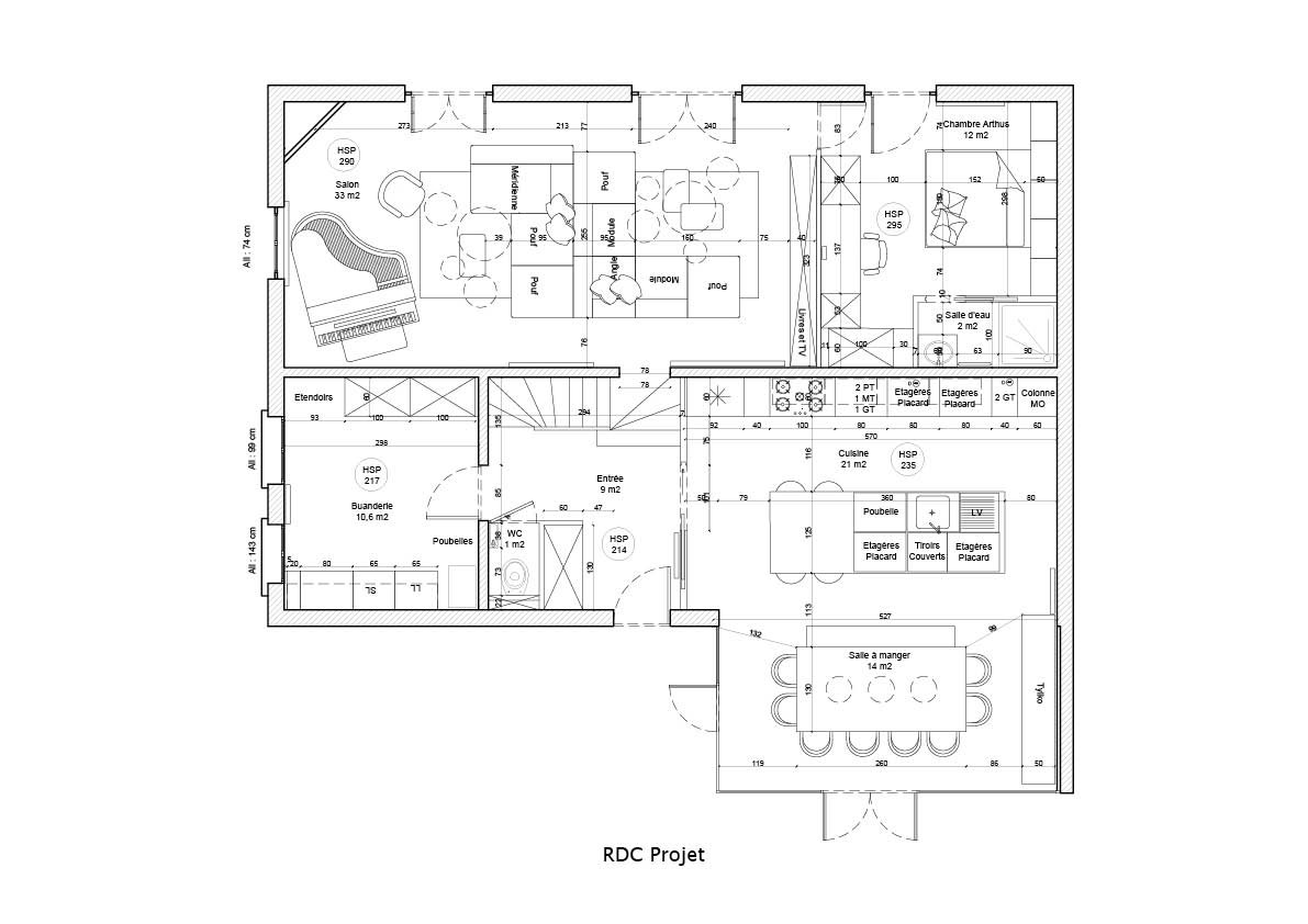
Les plans

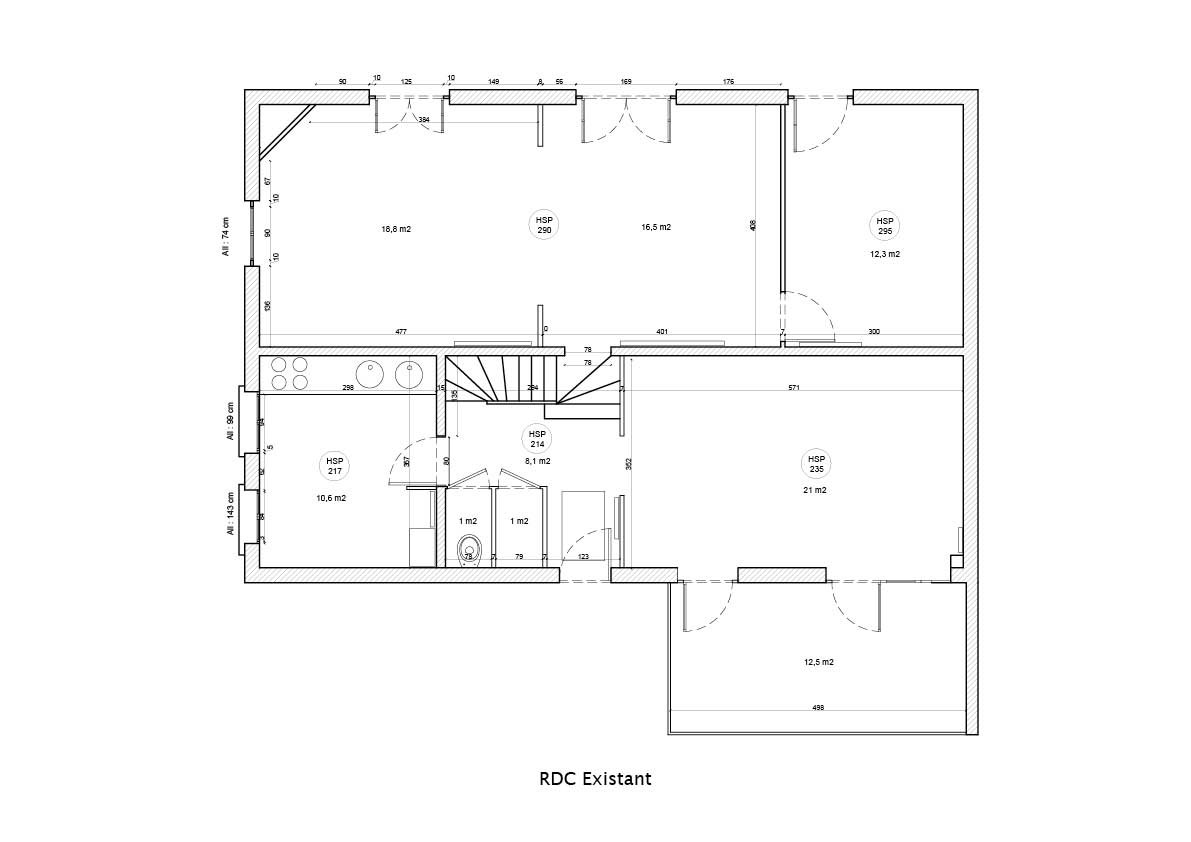
Cette bâtisse a été entièrement rénovée, dans ses moindres recoins. Pas un seul espace n’a été conservé en l’état car les clients m’ont laissé une totale liberté quant aux propositions d’aménagement. C’est donc sur la base de leurs besoins et envies qu’ont été définis les plans de leur maison de rêve.

L’entrée

Pour cette maison familiale très vivante, la rénovation de l’entrée a été pensée de façon à optimiser au maximum les espaces de rangement.

La cuisine & la salle à manger

Idéalement nichées sous la véranda, la cuisine et la salle à manger de cette bâtisse sont un des lieux de vie central de la famille : réception des invités, réunions de famille, préparation des repas, petites confidences en marge des soirées…

Une très grande place a été donnée à la cuisine dans la rénovation de cette maison. Avec un plan de travail en pierre sur-mesure de plus de trois mètres cinquante de long, d’un seul tenant, il est le cœur de cet espace et lui confère un aspect magistral.

La véranda

La véranda, initialement existante à ce même emplacement a été déposée et redessinée entièrement. Sa confection a été confiée à un artisan spécialisé dans la fabrication de vérandas anciennes pour un résultat fidèle à l’esprit de cette bâtisse.

Le double salon

Le salon, ouvert sur le jardin, a été conçu pour un double usage. D’une part, la partie de gauche laisse place à un merveilleux piano quart de queue. La famille peut s’y retrouver pour jouer de la musique au coin du feu.

D’autre part, une grande bibliothèque permet d’exposer les souvenirs et coups de cœur de cette famille nombreuse. Au centre de cet espace, un immense canapé modulable permet un double emploi du salon tout comme une troisième configuration : celle d’un grand salon capable d’accueillir des réunions de famille ou de grandes soirées entre amis.

Retour en haut