Arty loft

Les coulisses du projet

Rénovation complète et Décoration intérieures

Le moodboard

Laisser entrer la lumière naturelle, mettre en valeur les volumes et les œuvres d’Art du propriétaire ont été les éléments directeurs de cette rénovation. Du métal noir et des matières brutes donnent une esthétique résolument masculine à ce loft.

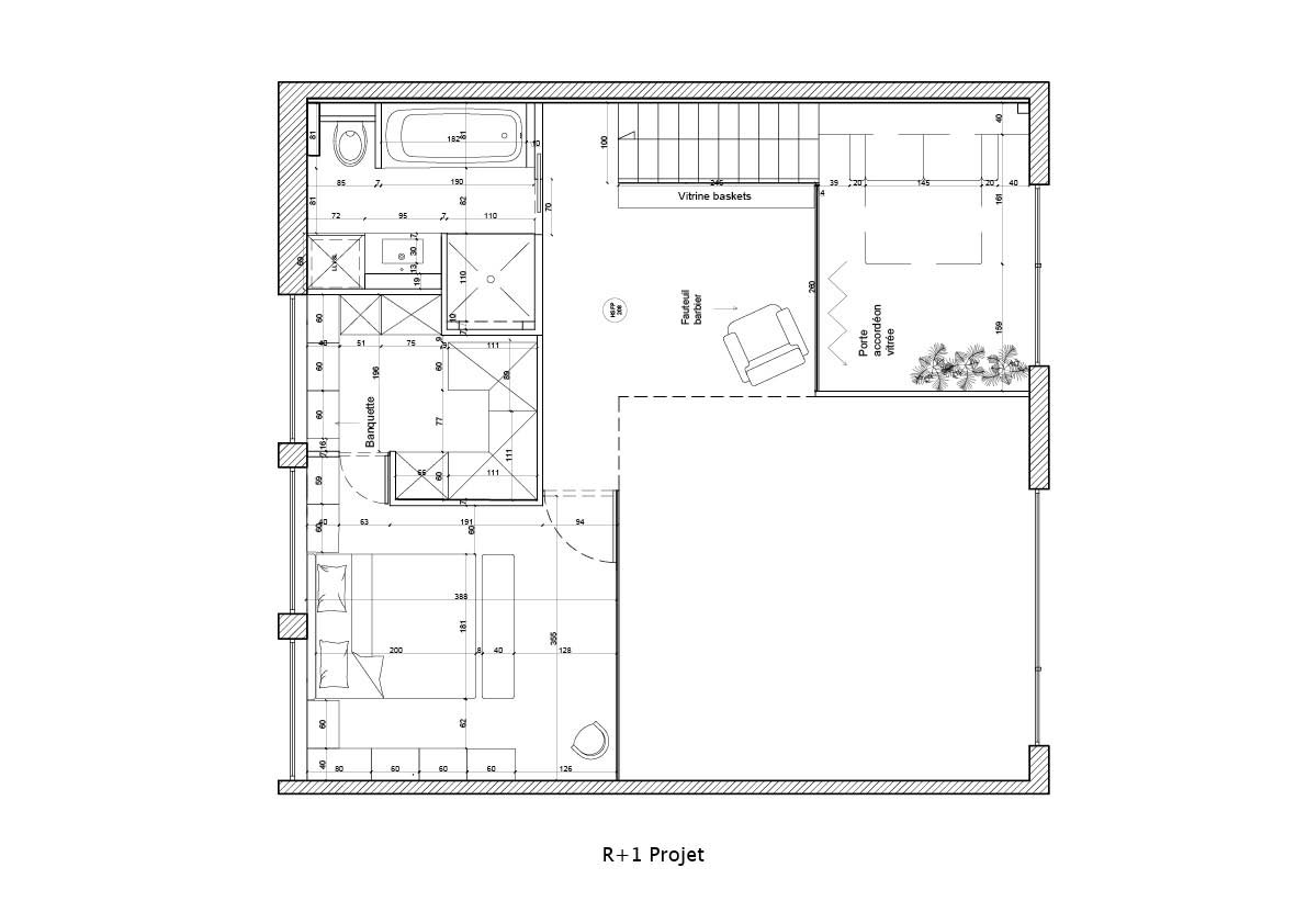
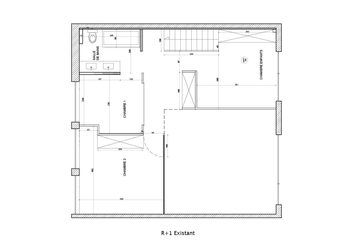
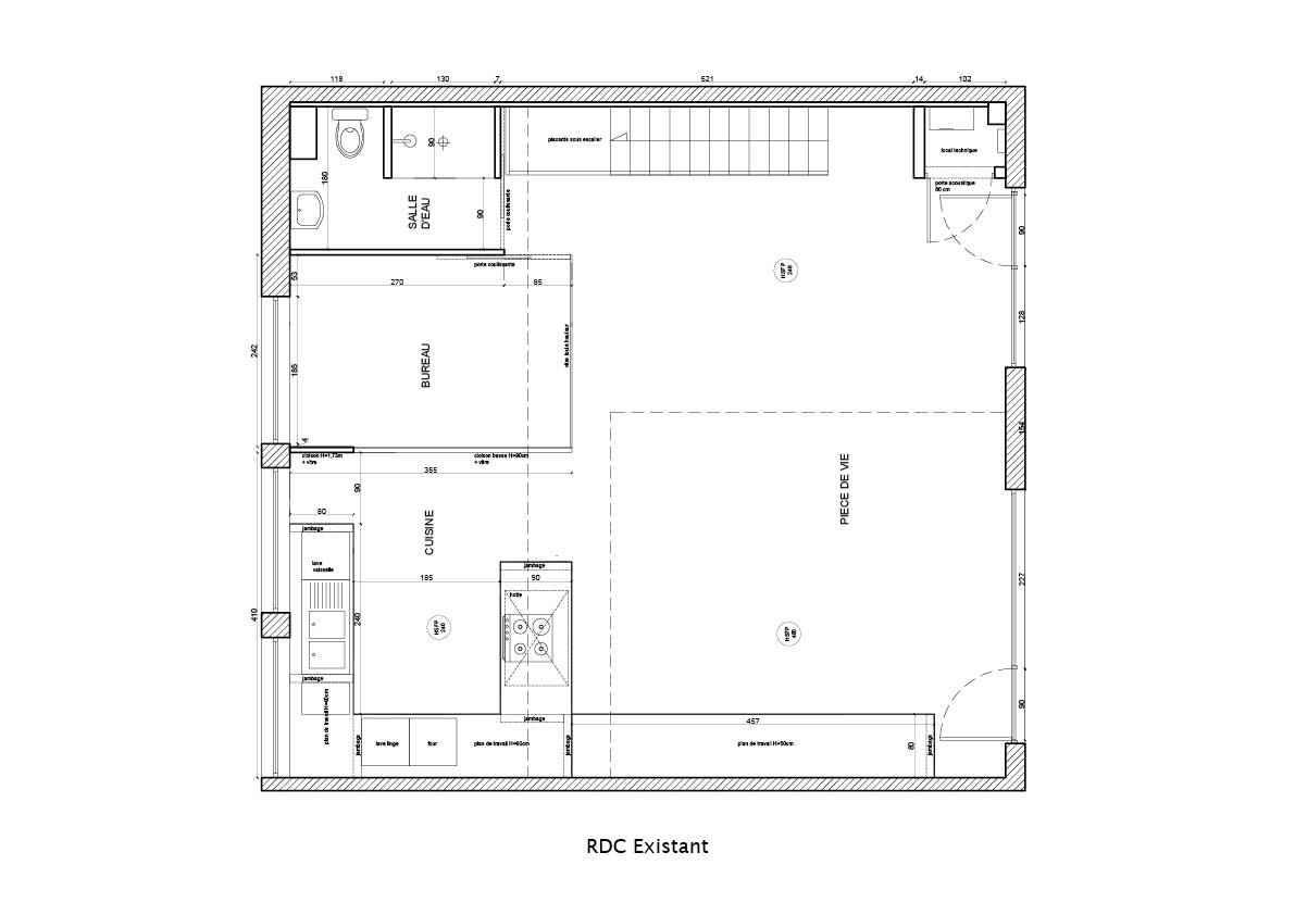
Les plans

La salle à manger

Au rez-de-chaussée, les parois vitrées d’un bureau ont été déposées pour laisser place à une magistrale table de salle à manger réalisée entièrement sur-mesure. Le sol a été comblé avec des plats métalliques laqués en noir, ce qui les inscrit parfaitement dans le projet.

La mezzanine

Dans la mezzanine, les espaces ont été remodelés pour y créer un dressing attenant à la chambre, un bureau qui sert aussi de chambre d’amis, une salle de de bain comportant une baignoire et une douche et enfin, un palier accueillant une impressionnante Collection de baskets.

La Salle de bain

La salle de bains a été implantée à son emplacement d’origine mais tous les matériaux ont été revus. Le béton ciré au sol et aux murs, les menuiseries sur mesure ainsi que la douche et la vasque réalisées en pierre naturelle par Unique Habitat, lui confèrent une toute nouvelle identité.

Retour en haut