13 OPEN Space

Les coulisses du projet

Rénovation complète et Décoration intérieures

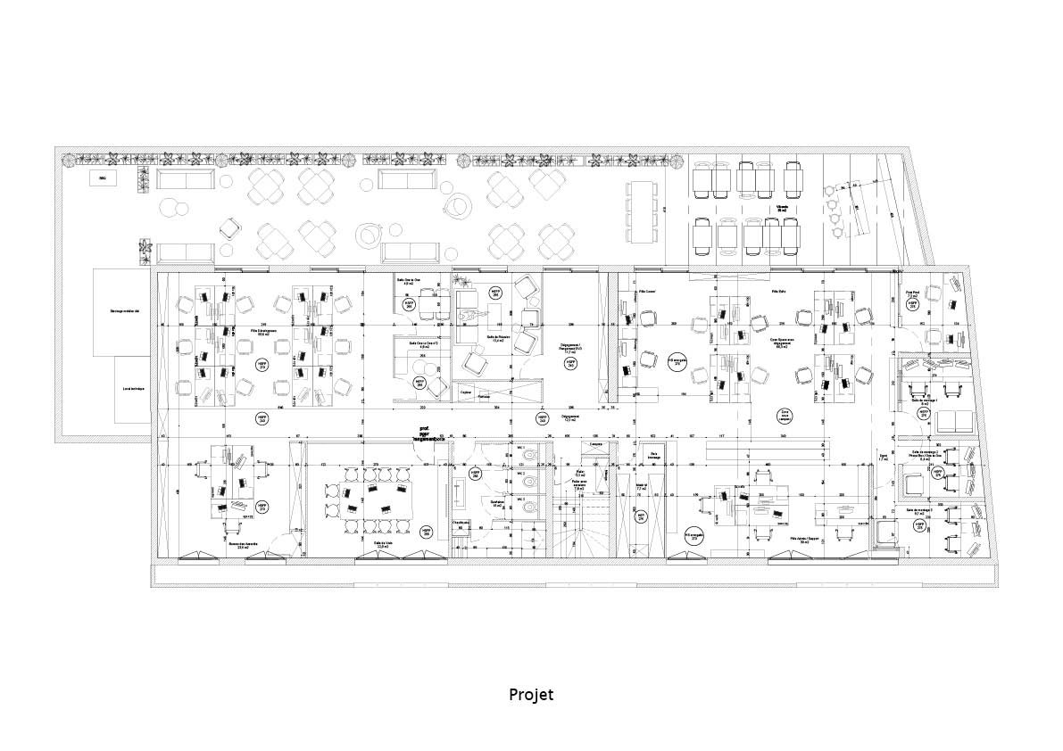
Les plans

Acquis entièrement vide, ce plateau de 400 m² offrait une multitude de possibilités; et le brief son lot de contraintes.

Côté société de création de contenus digitaux, il a été important de créer assez de zones de réunion, à deux ou à plusieurs, pour gérer toutes les configurations d’échanges au fil d’une journée type de travail. Tous les postes se trouvent également dans un grand Open Space avec accès direct sur la terrasse.

Deux grandes salles de réunion, utilisables par tous, offrent des espaces confortables de visioconférence ou de brainstorming.

L’agence digitale

Du noir, du bois, des codes masculins et rétro ont été choisis pour refléter la personnalité du gérant de cette société de création de contenus digitaux. L’Open Space a été divisé en deux pôles. D’un côté le bureau des dirigeants, de l’autre celui des collaborateurs.

La société de production

Pour cet espace, il a fallu délimiter les différents pôles sans les cloisonner et créer trois salles de montage de films avec tout ce que cela comporte de contraintes relatives à l’isolation phonique.
La charpente a été peinte pour mettre en valeur le plafond cathédrale de cet espace.

Les espaces communs

Deux grandes salles de réunion ont été créées, sous deux formats différents. La première fait aussi office de salon, format propice aux brainstormings, et peut également se transformer en studio photo.

La seconde, est configurée pour des réunions en visioconférence.

Retour en haut